隨著市場萎縮、中國經濟整體步入后疫情時代,瓷磚行業特別是終端門店經營壓力越來越大。
然而佛山尊卓陶瓷卻逆流而上,全國超1000家門店,銷量持續增長,線下門店數量也不斷擴大。

尊卓陶瓷茂名代理商陳總及團隊,當之無愧的佼佼者

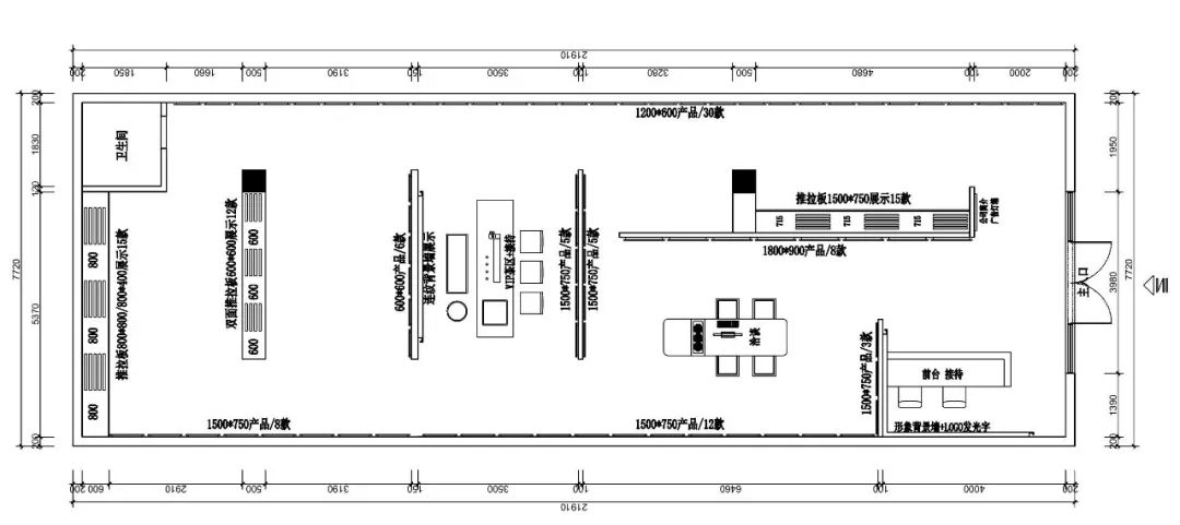
茂名市茂南區計星市場158㎡專賣店


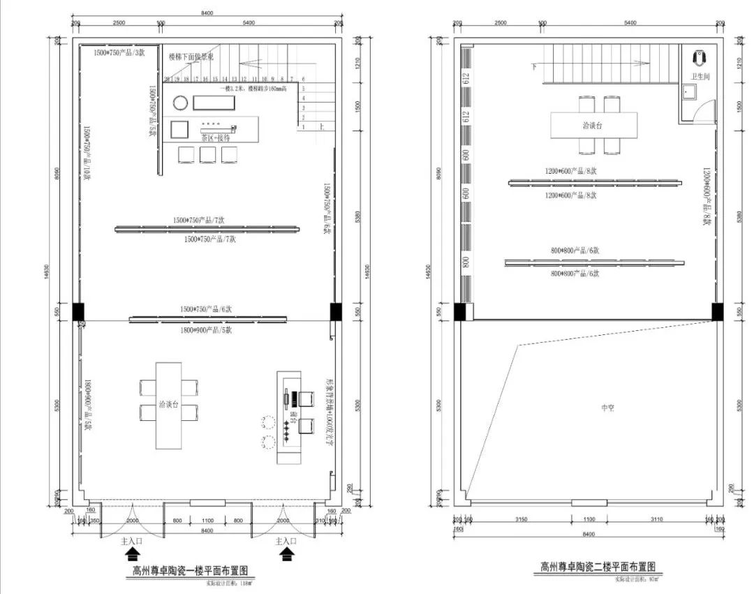
尊卓陶瓷高州專賣店外立面實景展示


針對年輕群體有素色質感磚系列,高端人群有特色的柔金能量瓷磚系列。
不管何種裝修風格和需求,每位到店的業主幾乎都能帶走滿意的瓷磚,甚至對比當地其他瓷磚大品牌之后,依然選擇尊卓陶瓷。

今年在公司總部的幫扶下已拿到不少鄉村自建房、別墅的訂單,陳總對尊卓工廠的產品和售后有十足的信心,也收獲真實的成長與實實在在的門店業績增長。
此外,尊卓總部協助代理商布局新零售推廣,在抖音、快手、小紅書這些平臺熱度都很高,能查詢到很多品牌獲獎的權威報道,這對業主了解產品很加分,品牌官方抖音所收獲的訂單會派遣給區域的門店。

陳總表示,如今年輕人都是互聯網玩家,裝修首先上網查一查再比一比,抖音、小紅書、快手獲客的方法可多了、現在不是沒業主,只是看你跟得了多少。
瓷磚品牌跟得上時代,關注經銷商的成長與實際經營,也有備受業主喜愛的瓷磚產品,未來經營尊卓陶瓷還會繼續多開店開大店!